SPIRE Head Office, Cairo
Interior Space:
Features an inviting lounge area characterized by soft, muted tones in the furnishings. The plush sofas provide comfort, while minimalistic coffee tables enhance the elegance. A striking abstract sculpture stands at the center, adding a focal point. Lush greenery outside the large windows brings in a refreshing natural element, complemented by strategically placed indoor plants that create a serene atmosphere. Subtle lighting from wall fixtures casts intriguing shadows, accentuating the design details.
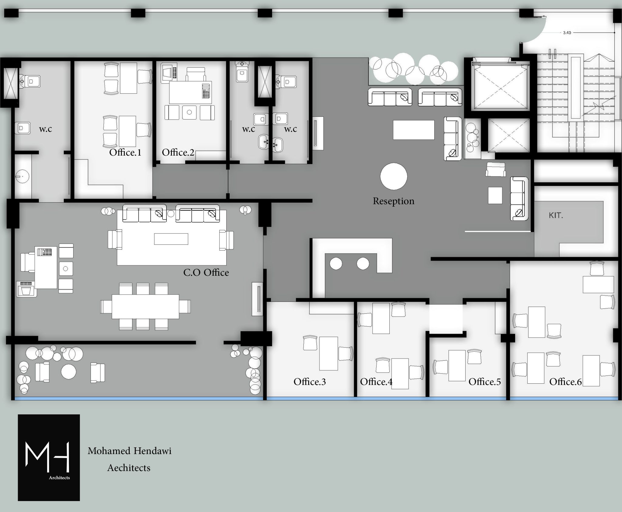
Floor Plan:
Presents the floor plan layout of the office. It showcases a logical arrangement with designated areas for reception, offices, and common spaces. The flowing design with rounded pathways encourages movement and accessibility. The reception area features an inviting circular design, leading to various office spaces. The careful placement of windows and greenery around the offices promotes a bright and airy environment. Overall, the layout emphasizes functionality while maintaining an aesthetic appeal
Reception Area:
- The reception features a sleek, minimalistic design with wooden accents and a warm color palette.
- A decorative tree is centrally placed within a circular planter, adding a natural element to the space.
- The walls are adorned with textured wood and soft, ambient lighting, highlighting the "SPIRE" signage.
- Furnishings include plush sofas and unique marble tables, contributing to a comfortable yet sophisticated environment.
Lounge Area:
- Presents a spacious lounge that feels light and airy, with large glass panels allowing natural light to flow in.
- The design incorporates greenery, further enhancing the tranquil setting.
- Curved sofas and modern black tables are arranged comfortably, inviting conversation and relaxation.
- Subtle design details, such as wall textures and integrated lighting, add to the overall elegance of the space










